Поиск по каталогу

Topvex TX/C04 HWH-L-CAV-S

Systemair Topvex TX/C04 HWH-L-CAV-S. Компактный вертикальный приточно-вытяжной агрегат с верхним подключением воздуховодов. Противоточный рекуператор. Водяной нагреватель большой мощности. С выносной панелью управления. Левая сторона обслуживания. Секция оттайки.

Описание

Компактные приточно-вытяжные агрегаты с верхним подключением воздуховодов.

Система автоматики «Systemair Access»

Низкое потребление электроэнергии

- Энергоэффективные вентиляторы прямого привода с ЕС двигателями

Высокоэффективный противоточный рекуператор

- >80% КПД рекуперации (EN 308) при номинальном расходе воздуха

- Не смешиваются приточный и вытяжной воздух

- Автоматический переход на летний режим, без рекуперации

- Рекуперация холода

Секция оттайки

- Topvex TX/C(-S) предварительно сконфигурированный вентиляционный агрегат с секцией оттайки.

Большие сервисные двери для простоты обслуживание

- Легкосъемные основные компоненты

- Отдельный шкаф электрических соединений облегчает техническое обслуживание и ввод в эксплуатацию

Корпус изготовлен из листового металла с Алюцинковым покрытием (AZ 185)

- Класс коррозионной защиты C4 (Промышленные и прибрежные районы с умеренной концентрацией соли)

- Срок эксплуатации листовой стали с покрытием AZ185 более 50 лет

Протестирован на заводе

Topvex TX/C разработаны в соответствии с высокими требованиями по энергосбережению, обеспечивают высокий КПД рекуперации и низкое потребление электроэнергии. Чтобы гарантировать высокую эффективность утилизации тепла, противоточный рекуператор разработан для низких скоростей воздуха, и поэтому имеет низкое сопротивление. Приточный и вытяжной фильтры разработаны с минимизацией потерь давления без потерь качества фильтрации. Низкие внутренние потери давления являются важной составляющей для сокращения энергопотребления. Вентиляторы прямого привода с EC-технологиями были очевидным выбором из-за высокой эффективности. EC-двигатели, при регулировке скорости вращения, имеют на 15-20% ниже энергопотребление по сравнению со стандартными асинхронными двигателями, регулируемыми частотными преобразователями.

100% байпас рекуператора обеспечивает низкие потери давления в течении теплого времени года. Клапан изолирует рекуператор в теплый период, тем самым исключая рекуперацию тепла, когда она не требуется.

СAV (постоянный расход воздуха) стандартная функция, VAV комплект (поддержание постоянного давления в каналах) доступен опционально.

Встроенная и запрограммированная система автоматики упрощает монтаж и ввод агрегата в эксплуатацию.

Агрегаты Topvex TX/C с буквой –S в конце наименования - предварительно сконфигурированные агрегаты со встроенной секцией оттайки.

Секция оттайки состоит из предварительно смонтированного секционного клапана, который разделяет теплообменник на три области плюс секцию байпаса. Все секции управляются отдельными двигателями для каждой секции и подключаются к отдельному, предварительно запрограммированному блоку управления.

Секция оттайки предотвратит накопление льда в теплообменнике и позволит разморозить теплообменник, одновременно с этим обеспечивая рекуперацию тепла в процессе размораживания.

При активации посредством определения давления секции клапана будут работать циклически. Каждая секция будет работать последовательно и компенсировать низкую температуру в вытяжном воздухе, регулируя байпас и секционный клапан.

Topvex TX/C имеют дружественную для пользователя систему управления. Мастер первого запуска поможет задать все уставки, необходимые для корректной работы агрегата. Встроенная система автоматики позволяет управлять скоростью вентилятора, температурами воздуха, временными интервалами. Помимо этого, Topvex TX/C обеспечивает такие энергосберегающие функции, как естественное охлаждение, рекуперацию холода, регулирование расходом воздуха и температурами в зависимости от времени года.

Topvex поставляется с новой системой автоматики Systemair Access, которая включает в себя панель управления Navi Pad с простым в использовании интуитивно-понятным пользовательским интерфейсом HTML5.

Класс защиты панели управления NaviPad - IP 54, допустимая температура эксплуатации 0-50°C, корпус панели не устойчив к ультрафиолетовому излучению, а NaviPad не предназначен для наружного монтажа. Подключение панели управления к контроллеру в шкафу автоматики возможно с помощью кабеля длиной до 100 м.

NaviPad подключается к агрегату через 3-х метровый плоский кабель (входит в комплект). Устанавливается на корпус агрегата Topvex или на стену, легко снимается с держателя.

Текущие рабочие параметры, уставки и блок-схема доступны в режиме реального времени и могут изменятся несколькими кликами. Система управления Systemair Access имеет встроенные функции энергосбережения, такие как свободное охлаждение, рекуперация холода, сезонность температур и контроль расхода воздуха. Возможность редактировать наименования агрегата, аварийных сигналов, компонентов управления даёт пользователю адаптировать агрегат под потребности различных объектов. С обзорной панелью мониторинга системы возможно отслеживать несколько воздухообрабатывающих агрегатов внутри локальной сети.

Стандартные средства связи: ModbusRTU через RS-485 и TCP/IP и BACnet через IP.

Маркировка оборудования.

- Модель: TX/C03, TX/C04 и TX/C06

- Нагреватель:

EL (Электрический).

HWL (Водяной, малой мощности).

HWH (Водяной, высокой мощности).

None (Без нагревателя).

- Правая или левая модель:

R (Правая), L (Левая).

Сторона определяется со стороны выхода приточного воздуха, если смотреть со стороны обслуживания.

- Регулирование расхода воздуха*:

CAV (Постоянный расход воздуха).

*VAV (Переменный расход воздуха = поддержание постоянного давления в каналах) доступно опционально.

- Секция оттайки: Агрегаты с буквой –S в конце наименования.


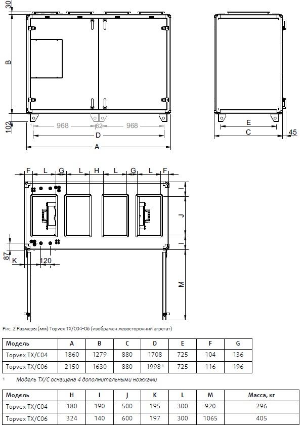
Размеры



Принадлежности