- Руководство по монтажу TOPVEX TR 09-15.PDF6.1 Мб, 06 мая в 12:00
- Руководство по эксплуатации и техническому обслуживанию TOPVEX TR 09-15.PDF4.5 Мб, 06 мая в 11:56
Topvex TR09 HWH-R-CAV
Systemair Topvex TR09 HWH-R-CAV. Компактный вертикальный приточно-вытяжной агрегат с верхним подключением воздуховодов. Роторный теплообменник. Водяной нагреватель большой мощности. С выносной панелью управления. Правая сторона обслуживания.
Описание
Компактные приточно-вытяжные агрегаты с верхним подключением воздуховодов
Система автоматики «Systemair Access»
Низкое потребление электроэнергии
- Энергоэффективные вентиляторы прямого привода с ЕС двигателями.
Высокоэффективный роторный теплообменник.
- Не требуется отвод конденсата.
Большие сервисные двери для простоты обслуживание.
- Легкосъемные основные компоненты.
- Отдельный шкаф электрических соединений облегчает техническое обслуживание и ввод в эксплуатацию.
Корпус изготовлен из листового металла с Алюцинковым покрытием (AZ185)
- Класс коррозионной защиты C4 (Промышленные и прибрежные районы с умеренной концентрацией соли)
- Срок эксплуатации листовой стали с покрытием AZ185 более 50 лет
Протестирован на заводе
Topvex TR разработаны в соответствии с высокими требованиями по энергосбережению, обеспечивают высокий КПД рекуперации и низкое потребление электроэнергии. Чтобы гарантировать высокую эффективность утилизации тепла, роторный теплообменник разработан для низких скоростей воздуха, и поэтому имеет низкое сопротивление. Приточный и вытяжной фильтры разработаны с минимизацией потерь давления без потерь качества фильтрации. Низкие внутренние потери давления являются важной составляющей для сокращения энергопотребления. Вентиляторы прямого привода с EC технологиями были очевидным выбором из-за высокой эффективности. EC двигатели, при регулировке скорости вращения, имеют на 15-20% ниже энергопотребление по сравнению со стандартными асинхронными двигателями, регулируемыми частотными преобразователями.
СAV (постоянный расход воздуха) стандартная функция, VAV комплект (поддержание постоянного давления в каналах) доступен опционально.
Topvex поставляется с новой системой автоматики SystemairAccess, которая включает в себя панель управления NaviPadс простым в использовании интуитивно понятным пользовательским интерфейсом HTML5.
Класс защиты панели управления NaviPad - IP 54, допустимая температура эксплуатации 0-50 C°, корпус панели не устойчив к ультрафиолетовому излучению, а NaviPad не предназначен для наружного монтажа. Подключение панели управления к контроллеру в шкафу автоматики возможно с помощью кабеля длиной до 100 м.
NaviPad подключается к агрегату через 3-х метровый плоский кабель (входит в комплект). Устанавливается на корпус агрегата Topvex или на стену, легко снимается с держателя. Текущие рабочие параметры, уставки и блок-схема доступны в режиме реального времени и могут изменятся несколькими кликами.
Система управления SystemairAccess имеет встроенные функции энергосбережения, такие как свободное охлаждение, рекуперация холода, сезонность температур и контроль расхода воздуха.
Возможность редактировать наименования агрегата, аварийных сигналов, компонентов управления даёт пользователю адаптировать агрегат под потребности различных объектов.
С обзорной панелью мониторинга системы возможно отслеживать несколько воздухообрабатывающих агрегатов внутри локальной сети.
Стандартные средства связи: ModbusRTU через RS-485 и TCP/IPи BACnet через IP.
Отдельный электрический шкаф со всеми кабельными соединениями, собранными в одном месте, облегчает ввод в эксплуатацию и обслуживание. Функции и функциональные возможности Topvex TR дают Вам все, что необходимо для создания комфортного микроклимата в помещении с наименьшими эксплуатационными затратами.
Маркировка оборудования.
- Модель: TR 03, 04, 06, 09, 12, 15.
- Нагреватель:
EL (Электрический).
HWL (Водяной, малой мощности).
HWH (Водяной, высокой мощности).
None (Без нагревателя).
- Правая или левая модель: R (Правая), L (Левая).
Сторона определяется со стороны выхода приточного воздуха, если смотреть со стороны обслуживания.
- Регулирование расхода воздуха:
CAV (Постоянный расход воздуха).
VAV (Переменный расход воздуха = поддержание постоянного давления в каналах) доступно опционально.
Технические характеристики
Установка
Частота 50 Гц
Напряжение (номинальное) 400 В
Количество фаз 3N~
Рекомендуемый предохранитель 3x10 A
Класс защиты IP23
Регулирование скорости Плавный
Расход воздуха 1 656 до 5 544 м³/ч
Приточный вентилятор
Напряжение 400 В
Количество фаз 3~
Входная мощность (Р1), приточный вентилятор 2 526 Вт
Воздушный фильтр притока
Класс фильтра, приточный воздух ePM1 60%
Фильтр вытяжного воздуха
Класс фильтра, вытяжной воздух ePM10 60%
Теплоутилизатор
Тип теплообменника Вращение
Нагреватель
Вариант обогрева На горячей воде
Вытяжной вентилятор / Вытяжной вентилятор
Напряжение 400 В
Количество фаз 3~
Входная мощность, вытяжной вентилятор 2 526 Вт
Другие
Управление вентилятором CAV, управления расходом воздуха
Установка Вертикально
Сторона притока Справа
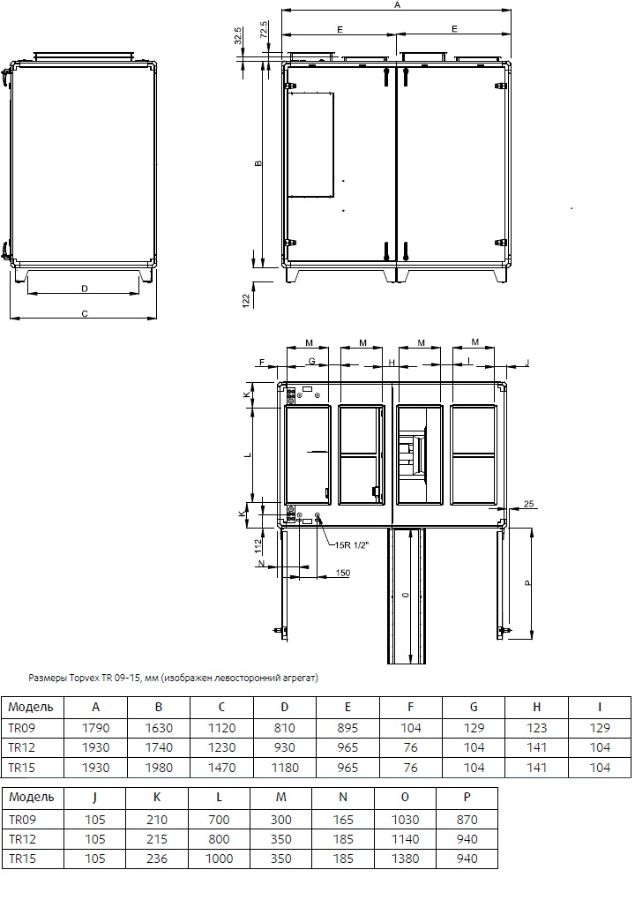
Размеры и вес
Вес 481 кг
ErP
Соответствие ErP ErP 2018
Размеры
Рабочий диапазон
Принадлежности