Поиск по каталогу

Topvex TC70

Topvex TC70

• Правая или Левая модель: R (Правая), L (Левая). Сторона определяется со стороны выхода приточного воздуха, если смотреть со стороны обслуживания.
• Нагреватели: EL (Электрический), HWL (Водяной нагреватель малой мощности), HWH (Водяной нагреватель высокой мощности), Нет (Нет нагревателя).
• Оттайка: S (Секция оттайки), B (Оттайка через байпас)

Описание

Противоточный рекуператор с КПД рекуперации > 80% (EN308)

• Приточный и вытяжной воздух не смешиваются
• Автоматический летний режим
• Рекуперация холода
• 100% байпас рекуператора
• Секция оттайки для обеспечения максимальной эффективности в тяжелых условиях эксплуатации
Низкое потребление энергии

• Низкое SFPv
• Энергоэффективные вентиляторы с ЕС-двигателями (с регулируемой скоростью)
Водяной или электрический догреватели

Поддержание постоянного расхода воздуха (CAV) в стандартной комплектации

• Переменный расход воздуха (VAV) – доступен опционально
Широкие инспекционные панели для удобного монтажа

• Все основные компоненты легко снимаются
Изготовлен из листовой стали с покрытием Mg-Zn, класс коррозионной стойкости C5

Протестирован на заводе

Система управления Systemair Access

Все модели оснащены системой управления Systemair Access с широким спектром функций оптимизации энергопотребления. Вместе с интуитивно понятным пользовательским интерфейсом панели управления Access NaviPad обеспечивает простое и гибкое управление системой вентиляции.

· Внешний шкаф автоматики для легкого доступа и монтажа

· Многофункциональное программное обеспечение, включая функцию мониторинга энергии «Контроль Энергии»

· Интегрированная поддержка BMS/SCADA

· Подготовлен для облачного сервиса Systemair

Простой монтаж

Topvex TC в типоразмерах 70 - состоят из секций, которые можно разделить для облегчения транспортировки и монтажа.

Topvex представляет собой безрамную конструкцию с оптимизированными размерами при обеспечении энергоэффективной работы. Все встроенные компоненты выбраны так, чтобы минимизировать использование площади помещения в зависимости от мощности, на которую они рассчитаны, что позволило сделать действительно компактный приточно-вытяжной агрегат.


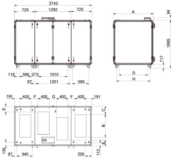
Размеры


Изделия

Артикул: 190438
Topvex TC70-L-B
S-TC70-L-N-ePM1/70-CE-B-C1-ePM10/70-AC

Артикул: 190439
Topvex TC70-L-EL16,2-B
S-TC70-L-N-ePM1/70-CE-B-C1-EL16,2-ePM10/70-AC

Артикул: 190444
Topvex TC70-L-EL16,2-S
S-TC70-L-N-ePM1/70-CE-SD-C1-EL16,2-ePM10/70-AC

Артикул: 190440
Topvex TC70-L-EL32,4-B
S-TC70-L-N-ePM1/70-CE-B-C1-EL32,4-ePM10/70-AC

Артикул: 190445
Topvex TC70-L-EL32,4-S
S-TC70-L-N-ePM1/70-CE-SD-C1-EL32,4-ePM10/70-AC

Артикул: 190442
Topvex TC70-L-HWH-B
S-TC70-L-N-ePM1/70-CE-B-C1-HWH-ePM10/70-AC

Артикул: 190447
Topvex TC70-L-HWH-S
S-TC70-L-N-ePM1/70-CE-SD-C1-HWH-ePM10/70-AC

Артикул: 190441
Topvex TC70-L-HWL-B
S-TC70-L-N-ePM1/70-CE-B-C1-HWL-ePM10/70-AC

Артикул: 190446
Topvex TC70-L-HWL-S
S-TC70-L-N-ePM1/70-CE-SD-C1-HWL-ePM10/70-AC

Артикул: 190443
Topvex TC70-L-S
S-TC70-L-N-ePM1/70-CE-SD-C1-ePM10/70-AC

Артикул: 190448
Topvex TC70-R-B
S-TC70-R-N-ePM1/70-CE-B-C1-ePM10/70-AC

Артикул: 190449
Topvex TC70-R-EL16,2-B
S-TC70-R-N-ePM1/70-CE-B-C1-EL16,2-ePM10/70-AC

Артикул: 190454
Topvex TC70-R-EL16,2-S
S-TC70-R-N-ePM1/70-CE-SD-C1-EL16,2-ePM10/70-AC

Артикул: 190450
Topvex TC70-R-EL32,4-B
S-TC70-R-N-ePM1/70-CE-B-C1-EL32,4-ePM10/70-AC

Артикул: 190455
Topvex TC70-R-EL32,4-S
S-TC70-R-N-ePM1/70-CE-SD-C1-EL32,4-ePM10/70-AC

Артикул: 190452
Topvex TC70-R-HWH-B
S-TC70-R-N-ePM1/70-CE-B-C1-HWH-ePM10/70-AC

Артикул: 190457
Topvex TC70-R-HWH-S
S-TC70-R-N-ePM1/70-CE-SD-C1-HWH-ePM10/70-AC

Артикул: 190451
Topvex TC70-R-HWL-B
S-TC70-R-N-ePM1/70-CE-B-C1-HWL-ePM10/70-AC

Артикул: 190456
Topvex TC70-R-HWL-S
S-TC70-R-N-ePM1/70-CE-SD-C1-HWL-ePM10/70-AC

Артикул: 190453
Topvex TC70-R-S
S-TC70-R-N-ePM1/70-CE-SD-C1-ePM10/70-AC