- Руководство по монтажу Topvex SC.PDF7 Мб, 15 апреля в 15:52
- Руководство по эксплуатации и техническому обслуживанию Topvex SC.PDF4.5 Мб, 15 апреля в 15:52
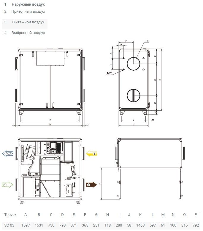
Topvex SC03 EL-R-CAV
Systemair Topvex SC03 EL-R-CAV. Компактный горизонтальный приточно-вытяжной агрегат с боковым подключением воздуховодов. Электрический нагреватель. С выносной панелью управления. Правая сторона обслуживания.
Описание
Компактные приточно-вытяжные агрегаты с боковым подключением воздуховодов
Система автоматики Systemair Access
Низкое потребление электроэнергии
- Энергоэффективные вентиляторы прямого привода с ЕС двигателями
Высокоэффективный противоточный рекуператор
- Не смешиваются приточный и вытяжной воздух
- Автоматический переход на летний режим, без рекуперации
- Рекуперация холода
Большие сервисные двери для простоты обслуживание
- Легкосъемные основные компоненты
- Отдельный шкаф электрических соединений облегчает техническое обслуживание и ввод в эксплуатацию
Корпус изготовлен из листового металла с Алюцинковым покрытием (AZ185)
- Класс коррозионной защиты C4 (Промышленные и прибрежные районы с умеренной концентрацией соли)
- Срок эксплуатации листовой стали с покрытием AZ185 более 50 лет
Протестирован на заводе
Topvex SC обеспечивают максимально энергоэффективную вентиляцию помещения за счет 3-х встроенных клапанов байпаса рекуператора. Конструкция байпаса обеспечивает низкие внутренние потери давления и изолирует рекуператор, тем самым исключая пассивную рекуперацию в теплое время года. Байпас вытяжного фильтра в период, когда не требуется нагрев воздуха, обеспечивает низкие внутренние потери давления и снижает частоту замены фильтров. Уникальное расположение байпаса позволяет при включении режима пожара, активированного внешним сигналом, удалять вытяжной воздух минуя рекуператор и фильтр.
Topvex SC разработаны в соответствии с высокими требованиями по энергосбережению, обеспечивают высокий КПД рекуперации и низкое потребление электроэнергии. Чтобы гарантировать высокую эффективность утилизации тепла, противоточный рекуператор разработан для низких скоростей воздуха, и поэтому имеет низкое сопротивление. Приточный и вытяжной фильтры разработаны с минимизацией потерь давления без потерь качества фильтрации. Низкие внутренние потери давления являются важной составляющей для сокращения энергопотребления. Вентиляторы прямого привода с EC технологиями были очевидным выбором из-за высокой эффективности. EC двигатели, при регулировке скорости вращения, имеют на 15-20% ниже энергопотребление по сравнению со стандартными асинхронными двигателями, регулируемыми частотными преобразователями.
СAV (постоянный расход воздуха) стандартная функция, VAV комплект (поддержание постоянного давления в каналах) доступен опционально.
Topvex поставляется с новой системой автоматики Systemair Access, которая включает в себя панель управления NaviPad с простым в использовании интуитивно понятным пользовательским интерфейсом HTML5.
Класс защиты панели управления NaviPad - IP 54, допустимая температура эксплуатации 0-50 C°, корпус панели не устойчив к ультрафиолетовому излучению, а NaviPad не предназначен для наружного монтажа. Подключение панели управления к контроллеру в шкафу автоматики возможно с помощью кабеля длиной до 100 м.
NaviPad подключается к агрегату через 3-х метровый плоский кабель (входит в комплект). Устанавливается на корпус агрегата Topvex или на стену, легко снимается с держателя.
С обзорной панелью мониторинга системы возможно отслеживать несколько воздухообрабатывающих агрегатов внутри локальной сети.
Стандартные средства связи: ModbusRTU через RS-485 и TCP/IP и BACnet через IP.
Маркировка оборудования.
- Модель: SC 03, 04, 06, 08 и 11
- Нагреватель: EL (Электрический). HW (Водяной). None (Без нагревателя).
- Правая или левая модель: R (Правая), L (Левая).
Сторона определяется со стороны выхода приточного воздуха, если смотреть со стороны обслуживания.
- Регулирование расхода воздуха*:
CAV (Постоянный расход воздуха).
*VAV (Переменный расход воздуха = поддержание постоянного давления в каналах) доступно опционально.
Технические характеристики
Установка
Частота 50 Гц
Напряжение (номинальное) 400 В
Количество фаз 3N~
Рекомендуемый предохранитель 3x16 A
Класс защиты IP23
Регулирование скорости Плавный
Расход воздуха 396 до 2 016 м³/ч
Преднагрев / Догрев
Входная мощность, догреватель 5 кВт
Приточный вентилятор
Напряжение 230 В
Количество фаз 1~
Входная мощность (Р1), приточный вентилятор 709 Вт
Воздушный фильтр притока
Класс фильтра, приточный воздух ePM1 60%
Фильтр вытяжного воздуха
Класс фильтра, вытяжной воздух ePM10 60%
Теплоутилизатор
Тип теплообменника Противоточный
Нагреватель
Вариант обогрева Электронагрев
Выходная мощность, нагрев 5 кВт
Вытяжной вентилятор / Вытяжной вентилятор
Напряжение 230 В
Количество фаз 1~
Входная мощность, вытяжной вентилятор 716 Вт
Другие
Управление вентилятором CAV, управления расходом воздуха
Установка Горизонтально
Сторона притока Справа
Размеры и вес
Вес 293 кг
ErP
Соответствие ErP ErP 2018
Размеры
Рабочий диапазон
Принадлежности