Поиск по каталогу

SAVE VTC 700 L

SAVE VTC 700 L

Systemair SAVE VTC 700 L with new SAVE control. Приточно-вытяжная вентиляционная установка с рекуперацией тепла для жилых помещений с вентилируемой площадью до 550 м2. Левосторонняя модель.
Артикул: 88781

Описание

• Приточно-вытяжная установка с высокоэффективным противоточным рекуператором.
• Энергоэффективные радиальные вентиляторы, с современной EС-технологией, обеспечивают низкие показатели SFP и низкий уровень шума
• Автоматическая функция защиты от обмерзания Управление по потребности по уровню влажности воздуха (встроенный датчик влажности в вытяжном канале).
• Система управления SAVE Touch с емкостным цветным сенсорным дисплеем для удобства использования и ввода в эксплуатацию
• Соединительный короб на корпусе для легкого ввода в эксплуатацию
• Поддержка протокола Modbus через порт RS485
• Модуль управление через Internet и Systemair cloud (IAM) доступен опционально
Приточно-вытяжная вентиляционная установка с рекуперацией тепла для жилых помещений с вентилируемой площадью до 550 м2. Лево- и правосторонние модели.

SAVE VTC 700 разработана для напольного монтажа в подсобных помещениях (прачечных, кладовых и тд.).

Корпус SAVE VTC 700 изготовлен из тепло-шумо изолированных сэндвич-панелей окрашенных в белый цвет. Установка поставляется с системой управления, с высокоэффективным противоточным рекуператором, фильтрами, с энергоэффективными вентиляторами с EC-двигателями, которые потребляют на 50% электроэнергии меньше по сравнению с традиционными двигателями переменного тока. Современные технологии обеспечивают низкие значения SFP (Specific Fan Power). Встроенный в вытяжном канале датчик влажности может использоваться для управления по потребности.

Все настройки и функции доступны на панели управления SAVE Touch. Выносная панель в черном корпусе поставялется в комплекте с установкой. Панель представляет собой цветной сенсорный дисплей с удобным интерфейсом. Доступна опция подключения одной или нескольких внешних панелей управления. Также панель управления имеет отдельный пользовательский уровень для авторизованных монтажников и обслуживающих специалистов.

На главном экране панели управления отображается информация о расходе воздуха, температуре, качестве воздуха и активных функциях. Можно выбрать ручной и автоматический режим управления или выбрать предпочтительные параметры из предварительно настроенных пользовательских режимов.

Автоматический режим SAVE Touch имеет множество функций, которые регулируют поток воздуха по уровню СО2, присутствию, влажности, недельного расписания и т. д. Функция управления по потребности обеспечивает эффективную и экономичную работу и наилучшее качество воздуха. Аварийные символы будут указывать на возможные неисправности и выдавать прямые предупреждения, если что-либо необходимо исправить.

Установка имеет автоматическую функцию оттайки, которая может быть выбрана из 3-х различных режимов в зависимости от наружного воздуха и воздуха внутри помещения. Без предварительного нагревателя в «Пассивных домах», где дисбаланс не допустим, установки могут работать до -5°C. Без предварительного нагревателя, где дисбаланс допускается, установки могут работать до -15°C. При условиях эксплуатации ниже -15°C необходима установка предварительного нагревателя.

SAVE VTC 700 может быть доукомплектована электрическим догревателем (4,5 кВт, необходимо электропитание 400 В).

Установка оснащена внешним соединительным коробом с предварительно подготовленными входами и выходами для простого монтажа и подключения внешних датчиков, нагревателей/охладителей.

Установка поставляется с панельными фильтрами низкого давления M5/ePM10 50% для приточного и вытяжного воздуха. Панельный фильтр F7/ePM1 60% и мешочный фильтр F7/ePM1 60% для приточного воздуха доступны опционально.


Технические характеристики
Изделие
Напряжение (номинальное) 230 В
Частота 50 Гц
Количество фаз 1~
Расход воздуха 700 м³/ч
Рекомендуемый предохранитель 10 A
Класс защиты IP24
Теплоутилизатор
Тип теплообменника Противоточный
Нагреватель
Выходная мощность, нагрев 4,5 кВт
Вариант обогрева Электронагрев
Приточный воздух
Входная мощность, приточный вентилятор 170 Вт
Вытяжной воздух
Входная мощность, вытяжной вентилятор 170 Вт
Фильтр
Класс фильтра, приточный воздух ePM10 50%
Класс фильтра, вытяжной воздух ePM10 50%
Цвет корпуса
Цвет корпуса, RAL RAL 9010
Размеры и вес
Вес 151 кг
Используется для
Установка Вертикально
Сторона притока Слева
ErP
Класс энергоэффективности, базовый агрегат A
Класс энергоэффективности, локальные требования A+
Соответствие ErP ErP 2016; ErP 2018


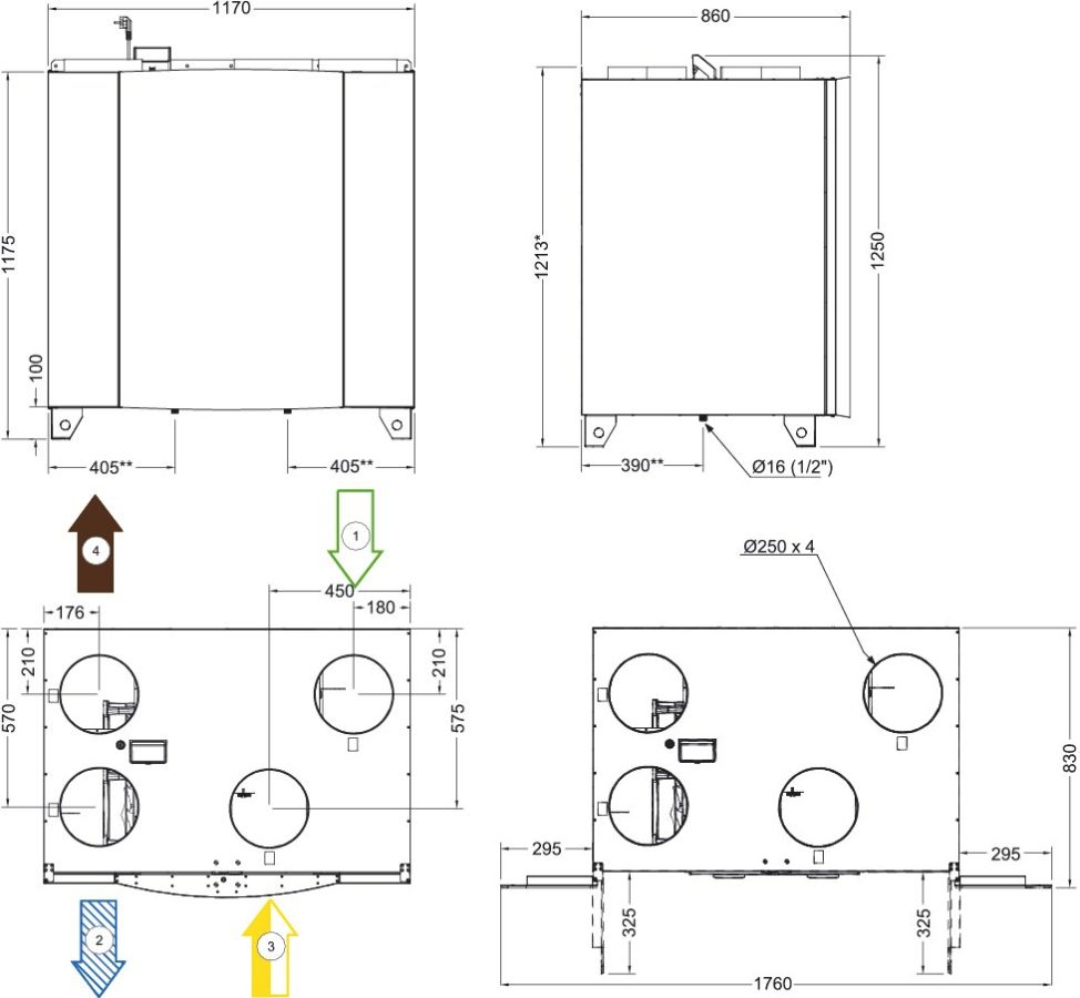
Размеры


1  Наружный воздух
2  Приточный воздух
3  Вытяжной воздух
4  Выбросной воздух